VC7: Chỉ riêng 4 dự án đang triển khai (2 Huế+2 Hòa Bình) đã mang lại EPS 10k/năm. Vươn mình tỷ đô..

Chủ đề trong 'Thị trường chứng khoán' bởi NGUYENMINHKHOI, 20/05/2022.

1556 người đang online, trong đó có 622 thành viên. 20:43 (UTC+07:00) Bangkok, Hanoi, Jakarta
  1. 1 người đang xem box này (Thành viên: 0, Khách: 1)
Chủ đề này đã có 32583 lượt đọc và 191 bài trả lời
  1. NGUYENMINHKHOI

    NGUYENMINHKHOI Thành viên gắn bó với f319.com

    Tham gia ngày:
    03/06/2021
    Đã được thích:
    733
    Tuyển người làm ở Bắc Giang nè.....
    Toàn dự án khủng làm 10 năm không hết. BGI sẽ vươn mình thành cty tỷ đô...

    [​IMG]
  2. ndk_1978

    ndk_1978 Thành viên gắn bó với f319.com

    Tham gia ngày:
    01/07/2012
    Đã được thích:
    438
    VC7 cũng có mảng xây dựng, đang làm sân bay Phú Bài, Huế

    BGI MATERIALS – NÂNG TẦM CÔNG TRÌNH VIỆT
    Công ty Cổ phần Vật liệu xây dựng BGI ( BGI Materials ) là doanh nghiệp cổ phần trực thuộc tập đoàn BGI Group ghi dấu ấn nổi bật trong lĩnh vực cung cấp nguyên vật liệu xây dựng tại Việt Nam. Với phương châm “Trao giá trị lớn nhất, nhận niềm tin vững bền” – BGI Materials luôn là đơn vị thi công hiệu quả và chất lượng nhất cho bất kỳ công trình nào.

    Với bề dày kinh nghiệm nhiều năm hoạt động trong nhiều lĩnh vực như sản xuất VLXD, Kinh doanh VLXD, sản xuất bê tông là mũi nhọn của công ty có phạm vi phân phối Toàn quốc. BGI Materials mang đến mức giá và dịch vụ tốt nhất, đồng thời đảm bảo từng loại VLXD theo tiêu chuẩn cao của nhà sản xuất.

    [​IMG] BGI kiến tạo nên những công trình mang đậm dấu ấn trong ngành xây dựng

    Tạo nên sự khác biệt từ cái tâm của người dẫn đầu
    Thương hiệu BGI Materials – Tập đoàn BGI Group nâng tầm chất lượng công trình Việt với tầm nhìn và sứ mệnh lớn cùng những triết lý kinh doanh mà Ban lãnh đạo và đội ngũ nhân sự luôn hướng tới.

    • Tin tưởng vào giá trị của con người
      • Phát triển tiềm năng của đội ngũ nhân lực ở tất cả các cấp độ.
      • Làm việc nhóm, quan tâm và tôn trọng lẫn nhau
    • Quan tâm đến trách nhiệm xã hội
      • Tuân thủ các tiêu chuẩn an toàn lao động, sức khỏe nghề nghiệp và môi trường
      • Nhận biết giá trị của tài nguyên thiên nhiên
      • Bảo vệ môi trường, cộng đồng và cống hiến vào sự phát triển của xã hội.
      • Giữ vững vị thế, đáp ứng ngày càng tốt hơn những nhu cầu của khách hàng.
      • Hướng tới một tập đoàn phát triển kinh doanh đa ngành trong nhiều lĩnh vực.
      • Đóng góp vào công cuộc xây dựng đổi mới và phát triển phục vụ đất nước.
    • Phấn đấu đạt đến sự xuất sắc
      • Luôn luôn đổi mới để đáp ứng nhu cầu của xã hội
      • Hướng đến những mục tiêu và cố gắng đạt kết quả tốt hơn
      • Luôn cập nhật các xu hướng toàn cầu và sẵn sàng ứng phó với những sự biến đổi
    BGI đang dần khẳng định chỗ đứng và vị thế của người dẫn đầu trong lĩnh vực VLXD

    Sỡ hữu cơ sở vật chất và con người ngày càng được tăng cường sáng tạo trong lao động, BGI đã cung cấp VLXD và thi công hàng trăm công trình dân dụng, công nghiệp, hạ tầng kỹ thuật, hạ tầng xã hội trên mọi miền đất nước. BGI đang là đơn vị nổi bật & phát triển mạnh, nhanh chóng ở tỉnh Thừa Thiên Huế với các công trình như Sân bay Phú Bài; Khu phức hợp Thủy Vân thuộc khu B Khu đô thị An Vân Dương; 2 dự án bãi rác lớn nhất tỉnh là Nghi Sơn và khu quần thể sân golf,.. BGI Materials ghi dấu ấn với hàng loạt các dự án công trình công nghiệp như Nhà máy nhiệt điện BOT Nghi Sơn 2 & Vĩnh Tân 4; Nhà máy xi măng Tân Thắng, Nhà máy thép Hòa Phát, Nhà máy hóa lọc dầu Nghi Sơn. Thế mạnh của BGI Materials có thể nhắc đến các công trình dân dụng như Bệnh viện An Sinh, dự án Cocobay, Khách sạn 17 tầng Lavela HCM, Khu đô thị An Bình City, Chung cư cao cấp Goldmark Hồ Tùng Mậu, Tòa nhà Golden Palace, Tòa Star City, ….

    [​IMG]

    BGI Materials đang triển khai công trình

    dự án Cảng hàng không quốc tế Sân bay Phú Bài – Thừa Thiên Huế

    Các Công ty của BGI và Tập đoàn đã hỗ trợ lẫn nhau tích cực về nguyên vật liệu, thi công xây lắp, đầu tư các dự án. Chính nhờ sự tương hỗ lẫn nhau này mà toàn bộ các thành viên đã tạo dựng nên thương hiệu BGI uy tín trong lĩnh vực xây dựng và đầu tư dự án.

    Bằng tất cả nỗ lực và quyết tâm của toàn Tập đoàn, BGI Group và BGI Materials sẽ tiếp tục vươn tới những tầm cao mới, sớm hoàn thành mục tiêu trở thành nhà đầu tư phát triển dự án và phân phối các sản phẩm xây dựng hàng đầu Việt Nam.

    Công ty Cổ phần VLXD BGI Materials và Trạm bê tông BGI xin gửi đến Quý Cơ quan, đối tác lời cảm ơn sâu sắc vì sự quan tâm và theo dõi dành cho chúng tôi.
  3. NGUYENMINHKHOI

    NGUYENMINHKHOI Thành viên gắn bó với f319.com

    Tham gia ngày:
    03/06/2021
    Đã được thích:
    733
    Quá hot với khu A, đi bộ 10' là tới Aeon Mall...
    [​IMG]
    [​IMG]
    DoanHongChaundk_1978 thích bài này.
    DoanHongChaundk_1978 đã loan bài này
  4. ndk_1978

    ndk_1978 Thành viên gắn bó với f319.com

    Tham gia ngày:
    01/07/2012
    Đã được thích:
    438
    Tuyệt vời...
    DoanHongChauNGUYENMINHKHOI thích bài này.
    DoanHongChauNGUYENMINHKHOI đã loan bài này
  5. NGUYENMINHKHOI

    NGUYENMINHKHOI Thành viên gắn bó với f319.com

    Tham gia ngày:
    03/06/2021
    Đã được thích:
    733
    Các dự án đều nằm ở vị trí địa lợi. “Nhất cận thị nhị cận giang” 2 dựa án ở Huế đều gần trung tâm mua sắm gần sông. 3 dựa án tại hoà bình cũng là gần trung tâm. Dự án Đồng Mỏ ngay sau ga Đồng Mỏ cũng gần trung tâm. Dự án đang nghiên cứu tại Đông Hà Quảng Trị ngay sát quốc lộ 1A. Tất cả đều thể hiện cái tầm của lãnh đạo.

    Cái tâm của lãnh đạo: dự án đang xây nâng nền lên 1m so với lũ đỉnh điểm tại khu A, liên tục gia tăng tỷ lệ sở hữu, hiện tại hơn 50% Cty, cam kết với cổ đông k đạt doanh thu lợi nhuận k nhận thù lao( giống warent buffets ) đó thể hiện cái tâm của lãnh dạo với khách hàng và cổ đông.
    DoanHongChau thích bài này.
    DoanHongChau đã loan bài này
  6. DoanHongChau

    DoanHongChau Thành viên gắn bó với f319.com

    Tham gia ngày:
    22/07/2021
    Đã được thích:
    533
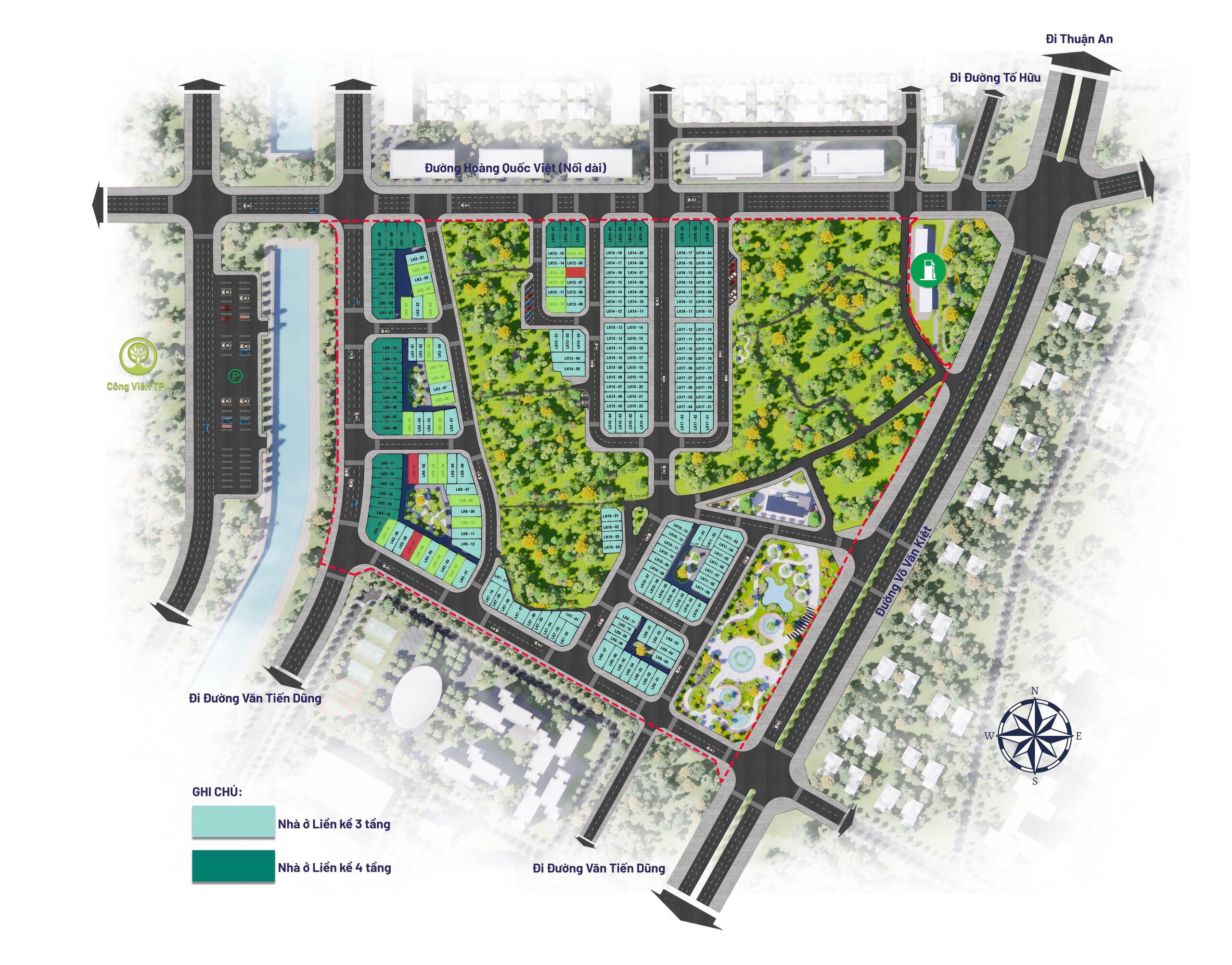
    Vc7 đang mở bán 46 căn giá tb khoảng 60tr/m2. Do vị trí đắc địa. Gần Aeon mall Huế nên giá rất cao....
    Lãi sẽ rất khủng...
    [​IMG] [​IMG]
    ndk_1978, vietthaivp83NGUYENMINHKHOI thích bài này.
    ndk_1978, NGUYENMINHKHOIDoanHongChau đã loan bài này.
  7. NGUYENMINHKHOI

    NGUYENMINHKHOI Thành viên gắn bó với f319.com

    Tham gia ngày:
    03/06/2021
    Đã được thích:
    733
    Quá đẹp, làm ăn bài bản.
    Nghe nói, bán đắt như tôm tươi.
    vietthaivp83 thích bài này.
  8. NGUYENMINHKHOI

    NGUYENMINHKHOI Thành viên gắn bó với f319.com

    Tham gia ngày:
    03/06/2021
    Đã được thích:
    733
    Cty ko có phát hành trái phiếu nhé các bác.
    Do vốn của cty và do KH trả tiền trước bằng hình thức góp vốn.
    ndk_1978caothuck2021 thích bài này.
    ndk_1978 đã loan bài này
  9. DoanHongChau

    DoanHongChau Thành viên gắn bó với f319.com

    Tham gia ngày:
    22/07/2021
    Đã được thích:
    533
    Theo tôi nghĩ, Quý 3 sẽ có giá 3x. Càng về cuối năm giá sẽ càng cao. Qua đầu 2023 thì 6x. Cạnh tranh giá với CSC, API.
    Vị trí 2 dự án ở khu A, E của VC7 đẹp hơn dự án của CSC, API nhé. (do gần Aeon Mall hơn)
    NGUYENMINHKHOI, ndk_1978caothuck2021 thích bài này.
    NGUYENMINHKHOIndk_1978 đã loan bài này
  10. ndk_1978

    ndk_1978 Thành viên gắn bó với f319.com

    Tham gia ngày:
    01/07/2012
    Đã được thích:
    438
    Mở bán giai đoạn 3 à bác? Nghe nói lần này vị trí đẹp hơn giai đoạn 1 và 2.
    Đắt như tôm tươi vì vị trí khá độc đáo. (liền kề Aeon Mall Huế)
    DoanHongChauNGUYENMINHKHOI thích bài này.
    DoanHongChau, NGUYENMINHKHOIndk_1978 đã loan bài này.

Chia sẻ trang này